137㎡法式住宅:中岛台社交+衣帽间收纳,生活更通透!
本案业主是一对32岁的自由职业者夫妻,目前暂无育儿计划,但希望为家人预留偶尔居住的空间。
他们对家的期待聚焦于三点:开阔通透的公共区域、强大的收纳体系以及充满氛围感的居住体验。

房屋概况
房屋坐标: 上海
户型格局: 3室2厅
装修面积: 137㎡
设计风格: 现代法式
设计师范儿 Vol.137
需求&方案
业主希望有中岛台与餐边柜结合的餐厨空间、独立衣帽间、主卧套房设计,以及客厅去电视化,以艺术感和实用性平衡日常与情调。

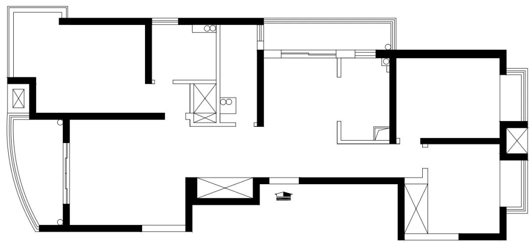
▲ 平面布置图
✔️取消独立玄关,开放式布局延伸视野,提升空间通透感;
✔️餐厨一体化设计,中岛台衔接功能,视野开阔无界;
✔️客厅以壁炉替代电视墙,隐形门设计隐藏主卧入口,趣味十足;
✔️主卧配置步入式衣帽间,提升生活仪式感;

▲ 平面布置图

想看看你家要怎么装?
点击上图☝预约设计师1V1免费户型规划
客厅

沙发背景墙以经典PU线条勾勒法式轮廓,定制玻璃展示柜兼顾收纳物品与视觉通透性。
弧形阳台门洞弱化边界,传递慵懒的法式情调,不规则阳台分区利用:一侧为高效洗衣区,另一侧设置收纳柜+复古唱片机,实用与艺术感共存。

取消传统电视墙,用壁炉造型结合隐形主卧门设计,营造温暖居心的氛围。
餐厅

打通厨房、餐厅与生活阳台,全景玻璃窗引入充沛光线,形成以中岛台为核心的洄游动线。中岛台延伸为厨房操作台+6人餐桌一体设计,兼顾烹饪效率与社交属性。

两侧分别规划开放式厨房,二字型白色橱柜与嵌入式家电+餐边柜组合,实现烹饪、收纳、社交的无缝衔接。古铜五金与哑光白柜体的搭配,赋予空间轻法式的精致感。

看看你家装修要花多少钱?
点击上图☝预约免费为您0增项报价
卧室

从客厅隐形门进入主卧,借用公卫与过道空间打造步入式衣帽间,串联卫浴、收纳与睡眠区,形成高效主卧套间系统。
人字拼木地板与法式石膏线贯穿空间,连通阳台改休闲角,弧形沙发+全景玻璃窗模糊室内外边界,赋予休憩时光松弛感。

榻榻米床结合顶天立地柜与书桌一体化设计,兼顾客房收纳与临时办公需求。预留弹性,未来可轻松改造为儿童房。

北面步入式衣帽间依托U型柜体布局,打造奶白双排衣柜+悬浮梳妆台收纳空间,复古红丝绒凳点睛提亮,注入摩登空间活力。
想看看你家要怎么装?
点击下图☟预约设计师1V1免费户型规划

卫生间

调整公卫入口动线后,双卫均采用二分离布局,奶油白墙砖搭配古铜五金,地面黑白小方砖增添复古趣味。

金色把手、暖光灯带等细节,将实用性与仪式感融为一体。大规格瓷砖上墙设计,兼顾视觉延伸与清洁便利性。
本案以现代法式为基底,通过隐形门、弧形元素串联空间语言,用奶油白、古铜金、构建柔和氛围。开放式布局、嵌入式收纳及多动线设计,在放大空间感的同时,满足自由职业者对工作与生活的双重需求。

如果你也期待一个兼顾个性与功能的家,欢迎点击上图即可预约设计师1V1服务,还能享10W整装壕礼,把专业的事交给专业团队你们只管美美住新家就好啦!
靠谱装修就选百安居
✅
闭口合同+0增项协议,白纸黑字签进合同,未经业主同意的恶意/被动增项我们承担;
✅
自有施工天团,工人统一培训持证上岗项目经理+监理1V5全程监工;
✅
新房43个工作日闪电工期,比传统装修缩短20天,超期赔付;
✅
24h云监工系统,手机随时查看工地实况AI自动监测施工规范水电验收都不用请假跑现场;

版权声明
本文仅作者转发或者创作,不代表旺旺头条立场。
如有侵权请联系站长删除
旺旺头条





发表评论:
◎欢迎参与讨论,请在这里发表您的看法、交流您的观点。